Concurso para Ciudad Parque Bicentenario de Cerrillos / SERVIU
Proyecto conjunto con las Oficinas: MRA / VIAS y el equipo de arquitectas Daniela Morales, Deborath Ramos y Amanda Schmitt-Fiebig.
ESTRATEGIA
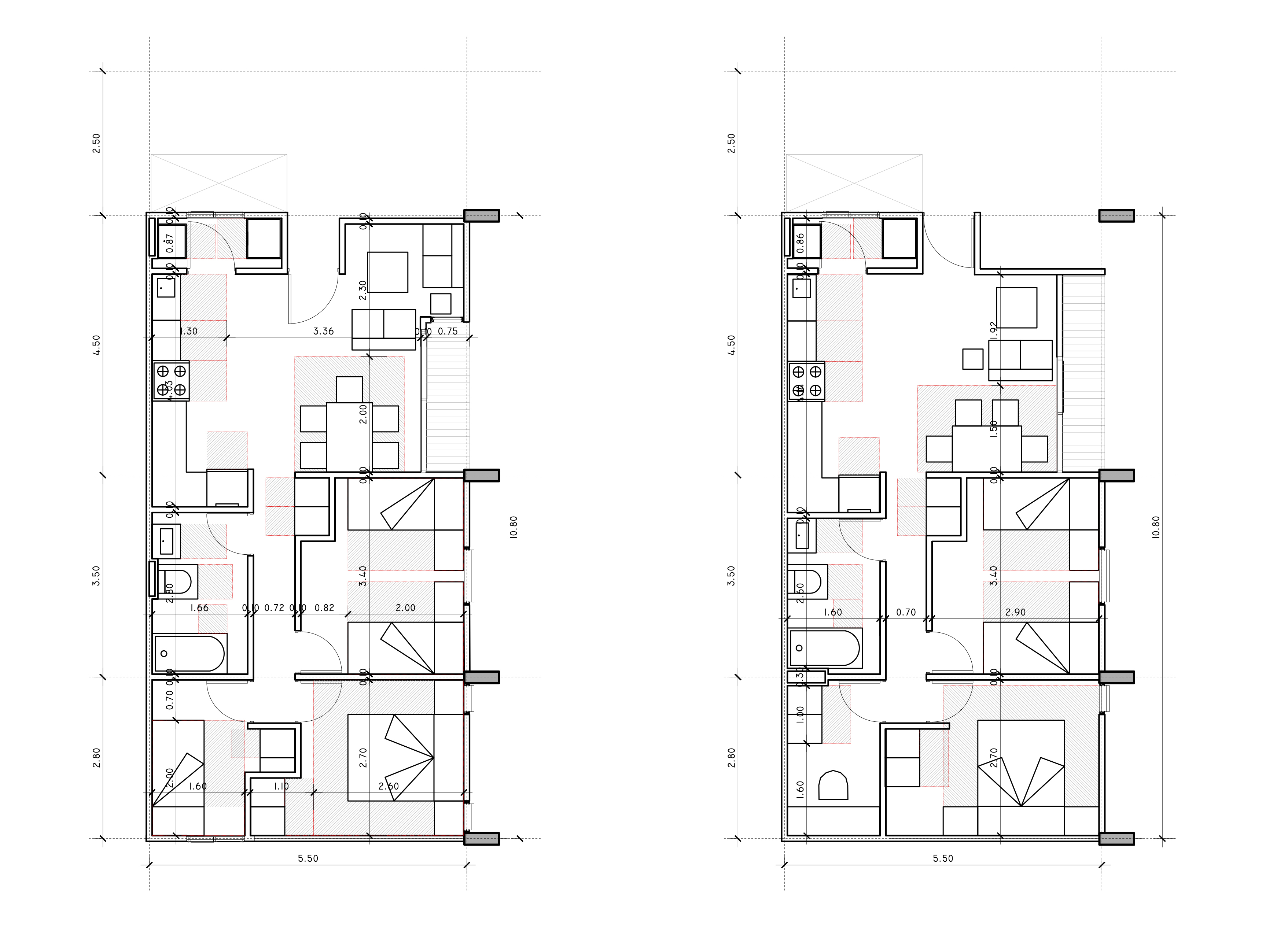
La invitación a formar parte del llamado a concurso para el diseño de viviendas DS19 junto a la oficina GESTION VIAS, en terrenos del Parque Cerrillos nos enfrentó a las preguntas elementales de saber el “como” y “cuánto”.
Entender el diseño de arquitectura como la herramienta p pieza “clave” que debe dar solución eficiente a estas demandas del habitar nos empujó a creer desde un inicio de que la vivienda es a su espacio y entorno así como las personas al lugar e identidad.
Así arrancamos desde la gran escala y de la idea de ir construyendo respuestas a cada escala de relación del habitar con el habitante. La primera escala de implantación buscó consolidar una primera idea de comunidad “en torno a”, en donde ese “a” sí o sí debía ser un espacio común de encuentro transversal para todas las edades. Espacio seguro y protegido que permitirá el encuentro, el juego, la reflexión y la mirada “diagonal” que permite integrar y entender la parte desde el total.
El edificio así se apropia de la manzana construyendo un perímetro pero vaciando el interior. Este perímetro se va personalizando y tomando lugar según las orientaciones y relaciones a las cuales enfrenta. Se apertura en su primera planta para dar continuidad a un espacio público interior privado y uno exterior público, ” la calle”.
Su volumetría se orienta y apertura hacia el poniente, entendiendo que un espacio interior privado debe garantizar, iluminación, ventilación y relación de escala hacia el acceso. Así el perímetro pierde escala hacia el acceso, desagregando módulos de vivienda para dar paso a nueva formas de habitar el espacio comunitario; se crean así terrazas verdes a distintos niveles y nuevos espacios de encuentros que permiten ir amarrando y resignificando la idea de conjunto.
Esta apropiación del conjunto a través de espacios comunitarios permite transformar la idea de edifico vertical en un edificio permeable y accesible en todas sus escalas.
Partido General











Deje un comentario