Proyecto Asociado a Oficina MRA y el equipo de arquitectas/o Daniela Morales / Javiera Muñoz Cesar Valderrama – dirigidas por Amanda Schmitt-Fiebig.
El proyecto, que arranca desde la optimización del Anteproyecto Base entregado por el SSMO, busca re-signifcar el espacio público dentro de la emblemática manzana en donde se ubican importantes edificios públicos como la Piscina Municipal, Edificio Rehabilitación Adulto Mayor, Ex fábrica SERMINI, Casa Familia Sermini y Gimnasio Municipal. Esta condición le otorga a la manzana un rol base al cual el NUEVO CESFAM DR ALESSANDRI debía responder de manera responsable y respetuosa.
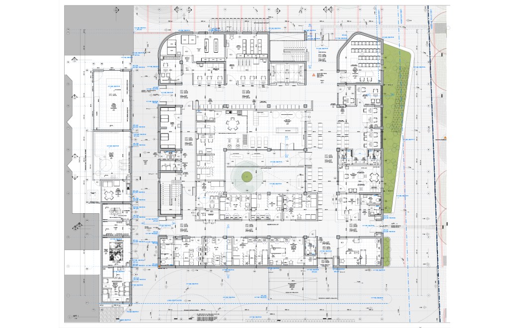
Así el proyecto define una “huella” de implantación simple y regular cómo un Edficio rectangular aislado que en su perímetro permite “conectar” y dar “continuidad” a la red de “atraviesos peatonales” que hoy la manzana tiene. Apertura que provoca en sus retiros y aperturas una PLAZA PRINCIPAL de acceso entre la EX FABRICA SERMINI (hoy edificio cultural), que permite activar la nueva fachada del Cesfam y re-valorar como nueva fachada peatonal, la lateral de la actual ex fabrica.
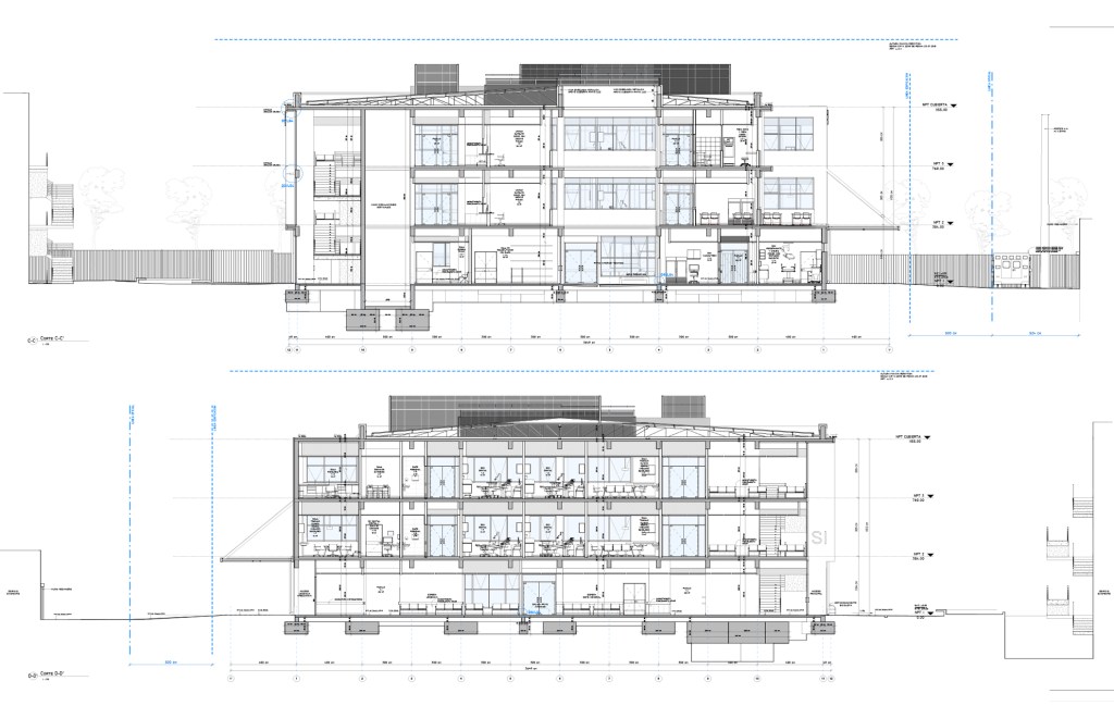
Se desarrolla en 3 niveles, uno publico y dos de consultas, teniendo el valor de resolver todas las instalaciones en un segundo edificio de un piso, al costado del edificio clínico, generando con ello además una calle exterior restringida de acceso y servicios, lo que le otorga a la planta del NUEVO Cesfam la posibilidad de resolver de manera limpia y rotunda la relación de espacios públicos y restringidos entre cada espacio del PMA.
Se potencian además las soluciones pasivas de iluminación y ventilación proyectando un patio interior que además se hace parte del programa como una plaza techada que apoya los recintos de rehabilitación y espera.












Deje un comentario