01 Estrategia Institucional
El proyecto de arquitectura es parte del Plan del Plan estratégico Institucional que busca “unir el conocimiento académico con los problemas de un getto social marginal estigmatizado, mediante la puesta en práctica del saber aprendido por unos, poniéndolo a disposición y servicio de las necesidades de otros.”
02 Objetivo
“En el Centro de Salud Urbana y Cohesión Social de la Legua, las escuelas de Medicina, Odontología, Enfermería, Sicología, Sociología, Derecho y Arquitectura podrán desarrollar sus prácticas profesionales, investigaciones en terreno y servicios, en un lugar adecuado y bajo tutela institucional de la UDP.”
03 Estrategia Urbana
Se propone a nivel de barrio “abrir” parte de la fachada contínua permitiendo transformar la idea de “patio interior” en “patio público y de encuentro” para el servicio de los habitantes, consolidando un umbral hacia la calle San Gregorio, que como puerta abierta a la comunidad se transforme en un refugio de enseñanza, cultura y salud para cada uno de los habitantes del barrio y comuna.
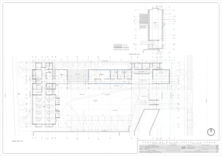
04 Estrategia Arquitectónica
Dentro de un terreno en comodato de 1.487m2 se resuelve mediante operaciones de remodelación y obra nueva, conquistar una imagen Institucional que simbolice la presencia del centro como oportunidad de conocimiento abierta a la comunidad y el barrio. Para tal efecto el proyecto busca consolidar un espacio único de encuentro a partir de un orden primero dado por una barra existente de aulas en un piso, las cuales se reciclan para dar cabida al programa social, quedando el programa clínico de atención odontológica y el de actividades (sala de psicomotricidad), como cerramientos de este único patio.
La barra social se considera en un piso consolidando 266,8 m2 de remodelación, mientras que en obra nueva se incorporan 213m2 más, con un total de proyecto de 479,8m2 aproximadamente.
05 Estrategia Constructiva
Entendiendo la complejidad de realizar faenas en obra, ya sea por lo complejo y estigmatizado del barrio, es que el proyecto toma como estrategia la prefabricación para la construcción de la obra nueva, prefabricación que basada en el “modulo container”, propone resolver la mayor parte del proyecto fuera de la obra, avanzando en paralelo entre faenas de fundaciones y prefabricación, racionalizando al máximo el tiempo y costo de obra, instalaciones y trazados de especialidades en dichos módulos, incorporando una etapa de coordinación de instalación de las conexiones al momento de llegar a la obra.
La idea es materializar una imagen objetivo de edificio prefabricado contemporáneo y con estándar de calidad.
Christian Araya Arquitecto.
Sofía Ramírez Arquitecto.







Deje un comentario